日本NPM脉冲马达单轴滑块SLP-25S

产品目录
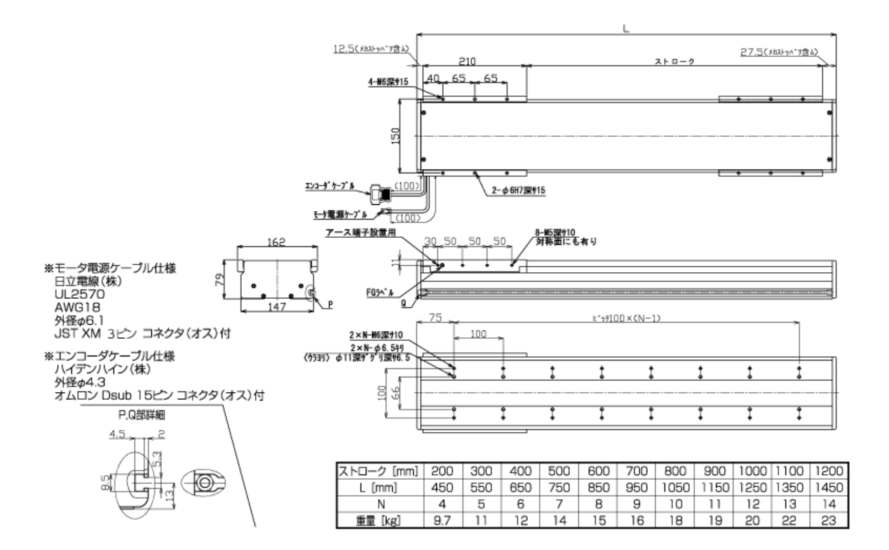
日本NPM脉冲马达单轴滑块SLP-25S

日本NPM脉冲马达单轴滑块SLP-25S

产品说明:

一种单元型单轴级,能够轻松实现高精度、高速线性驱动和长行程。

它在生产线中需要高速输送的控制,以及其他需要高速响应、高精度定位和提升维护性的应用中,

能够替代使用滚珠螺杆的机构,展现其能力。

dc58ebcc-8b69-418e-8d1c-524c73f82fb7.png

2eeea897-fd72-462a-bf51-fb3ab2915491.png


技术支持
我们将帮助您来充分体验我们产品的强大功能
搜索您的疑问
我们将所有已解决的问题存储在解决方法数据库中,
您可尝试搜索关键字、词或短语查找。