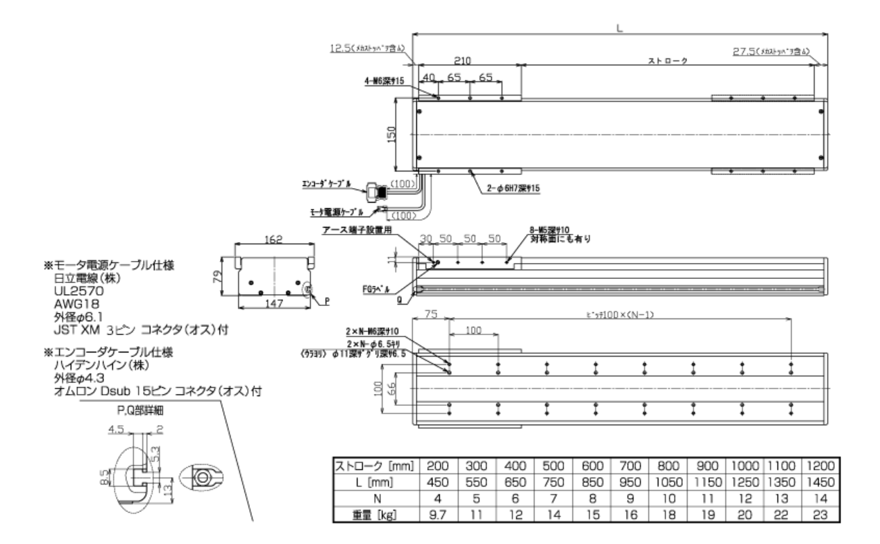
日本NPM脉冲马达单轴滑块SLP-25D

产品目录
日本NPM脉冲马达单轴滑块SLP-25D

日本NPM脉冲马达单轴滑块SLP-25D

产品说明:

型单轴级,能够轻松实现高精度、高速线性驱动和长行程。

它在需要高速运输的生产线控制、其他需要高速响应和高精度定位的应用中,

以及需要高精度定位的场合和维护改进的领域中展示其能力。

dc58ebcc-8b69-418e-8d1c-524c73f82fb7.png

7e7735ee-ec46-4ef4-be3a-ae91a2e22219.png

技术支持
我们将帮助您来充分体验我们产品的强大功能
搜索您的疑问
我们将所有已解决的问题存储在解决方法数据库中,
您可尝试搜索关键字、词或短语查找。